Descriere
În ultimii ani la căile de acess auto s-au făcut schimbări mecesare pentru un confort sporit, pentru o funcționare fără probleme, pentru elimina problemele de intreținere. Toate pe termen lung, durabil.
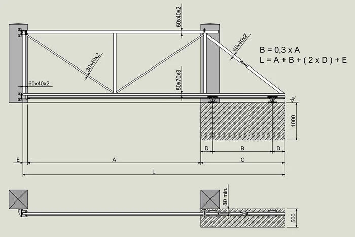
Una dintre soluții este sistemul pentru proțile culisante in consolă. Aceste definiții proți autoportante sau porțile culisante in consolă indică faptul că porțile sunt purtate pe niște grupuri de rulmenți, cu ajutorul unui profil C fără să atingă solul stând în consolă pe un soclu de beton, care să toarnă im afarea porțiunii de acces pe care se montează grupurile de rulmenți.
Deci folosind sistemul autoportant sau culisant în consolă eliminăm o serie de probleme, care apar la porțile culișante; dispare sina de culisare, nu mai este nici un obstacol în fata porților nu trebuie curățată de nisip, noroi zăpadă, gheată.
Poarta autoportantă funcționează foarte lin, fără probleme.Automatizare porții autoportante funcționează fără probleme.
În cazul în care schimbăm sistemul de porți batante pe sistem autoportant eliminăm opritorul din mijloc, ne putem oprii imediat după intrarea in curte, nu trebuie să ferim să lăsăm liber zona de deschiderea canatelor.
Alegând sistemul autoportant marca CAIS Cehia eliminați inca un lucru neplăcut care se întâmplă la montarea altor mărci de sisteme autoportante deteriorarea vopselei de pe cadrul porții respectiv a stratului de zinc de pe profilul C. Sistemul marca CAIS este conceput în așa fel încât profilul C să fie montat cu șuruburi pe cadrul porții. Kitul autoportant conține suruburi și piulițe nituibile, și profilul C este găurit din 40 in 40 cm.
Atât pentru kituri pentru porți mici rezidențiale căt si pentru porții medi de uz industrial.
Montând cu suruburi profilul, garantat poarta dvs. va fi mai frumoasă și mai durabilă in timp.
Kitul ENZO pentru poartă autoportantă, marca CAIS Cehia deschiderea utilă 4.5m lungime si 450Kg, contine:
- 2 buc grup role cu câte opt rulmenți
- 6m sina zincată, 73x61x3.5 mm; WUPPERMAN Germania
- 1 buc suport primire la inchidere
- 1 buc rolă urcare la inchidere
- 1 buc ghidaj superior reglabil (0-134mm)
- 2 buc capa profil C
- 15 buc suruburi si piulițe nituibile
Acest produs generează cost suplimentar pentru transport!
Plata se face în avans, prin banca pentru că firma de transport (Gebruder Weiss) nu lucrează cu ramburs.
📄 Pentru a descărca fișa tehnică, schițele de montaj sau alte detalii despre produs, apasă pe butonul de mai jos.
Descarcă documentația








