Descriere
it autoportant pentru deschidere înclinată maximă de 6m/600 kg – seria DEMO MEK
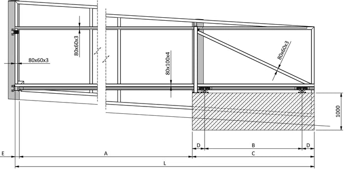
În foarte multe cazuri, căile de acces nu se pot realiza în orizontală pentru că trebuie să urmeze înclinația străzii. În unele cazuri această înclinație este semnificativa 15-20 cm la o portă mică, la o deschidere mai mare poate ajunge la 40-50cm. În cazul în care este posibil ca poarta să fie montată în partea de jos a înclinației, adică să se deschidă în aval și să se închide în amonte.
Confeția metalică se va executa în așa fel încât în poziția inchisă poarta să acopere exact golul urmând inclinația terenului.
Kit-ul conține
- 2 buc grup role descentrat cu câte opt rulmenți
- 9m (1buc de 6m, 1buc de 3m) sina zincată, 95x86x5mm; WUPPERMAN Germania
- 1 buc suport primire la inchidere
- 1 buc rolă urcare la inchidere
- 1 buc ghidaj superior reglabil (0-134mm)
- 2 buc capa profil C
- 15 buc suruburi si piulițe nituibile
Acest produs generează cost suplimentar pentru transport!
Plata se face în avans, prin banca pentru că firma de transport (Gebruder Weiss) nu lucrează cu ramburs.


📄 Pentru a descărca fișa tehnică, schițele de montaj sau alte detalii despre produs, apasă pe butonul de mai jos.
Descarcă documentația








